










Creating
Places
Places



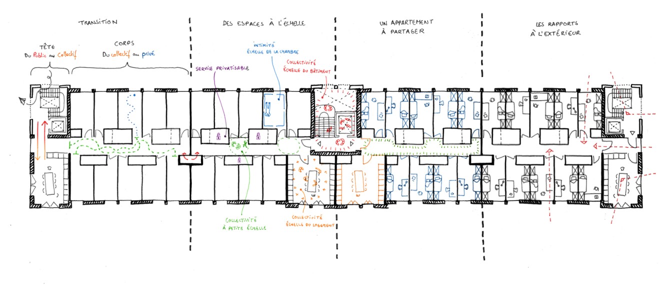
We propose habitable spaces that can be suitable in the complex, fragmented and often vague urban context of Brussels. We favour an approach where places transcend their simple function to become welcoming and familiar living spaces. Far from seeking ostentatious expressiveness, we design buildings that humanise architecture, transforming the living or working space into a real homely place. This philosophy emphasises simplicity and connection with the context, whether through the choice of materials, scale or location.








