


Type
Renovation
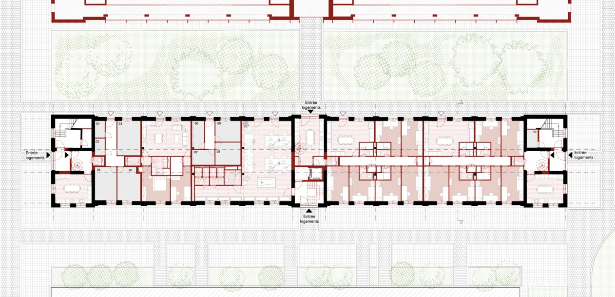
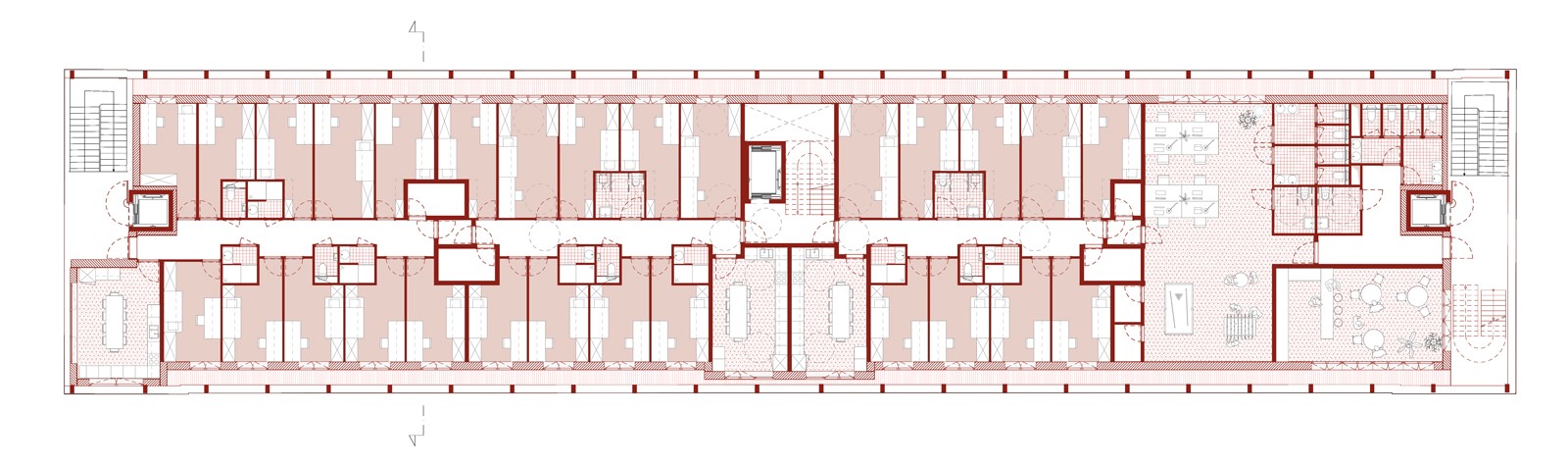
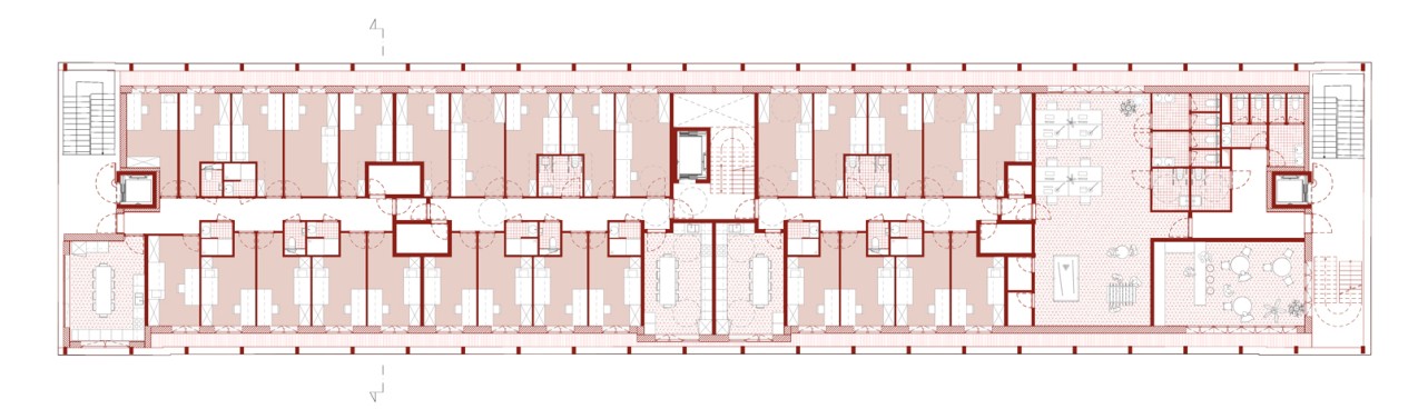
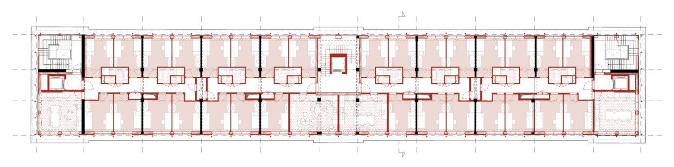
Typology
Housing
Programme
460 Student housing units, auditorium and shops
Client
Location
Avenue de la Couronne, 227 – 1050 Ixelles
Conception
2022
Status
Competition
Architects
BC Architects + MDW Architecture
















