















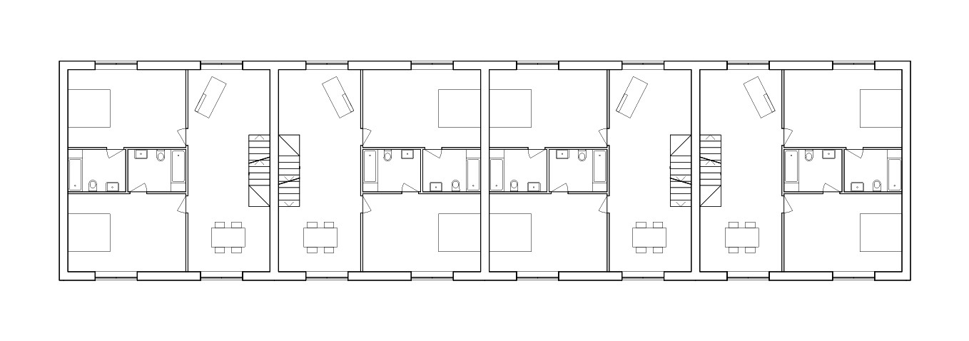
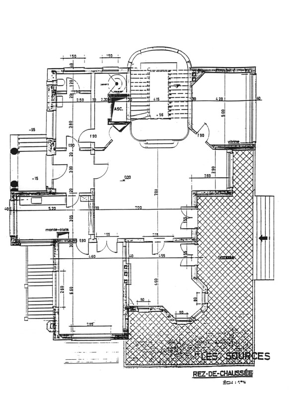
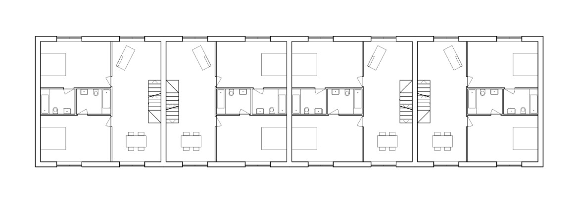
Type
Construction + Renovation
Typology
Housing
Programme
Transformation of the Solvay Palace
Client
Private
Location
11950 Woluwe‑St‑Pierre
Conception
2019
Status
Competition
Surface
1 300 m²

