Maison MDW - Relais
Maison MDW - Relais
Maison MDW - Relais
Maison MDW - Relais
Maison MDW - Relais
Maison MDW - Relais
Maison MDW - Relais
Maison MDW - Relais
Maison MDW - Relais
Maison MDW - Relais

The Relais project consists of the renovation of a 53-unit building from the 1920s, designed by architect Joseph Caluwaers in Ixelles. The building is part of a larger group of social housing units built around the same time in the same district, sharing stylistic similarities, like a puzzle piece. This complex is part of a renovation policy aimed at improving spatial, energy, and acoustic comfort by renovating the building to meet current standards, while preserving its architectural heritage value.

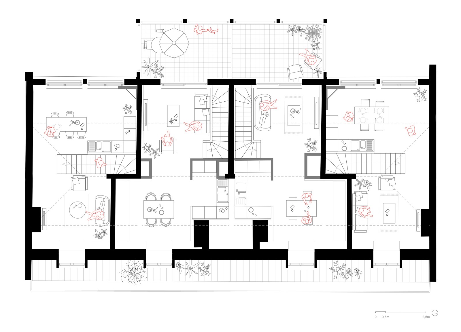
The approach is to "take care" of the existing building, addressing its issues with minimal intervention. On the street side, the facades are restored to their original condition. The interior layouts have been redesigned so that each apartment is dual-aspect, with cross-ventilation and an outdoor space. In the large attic spaces, duplex apartments have been created. On the garden side, three extensions have been added. These extensions increase the living space and bring more light into the apartments. The materiality of the brick extensions is in keeping with the original work of architect Caluwaers.

Without losing the original spirit, the project is enhanced with two redesigned communal gardens, new private gardens, a variety of housing types, new terraces, and other features. The redesigned garden features a new layout, focused more on community interaction. This communal garden within the block becomes an active place for meetings and communal living. It is linked to the street by three separate passageways, providing new connections to the city.

Maison MDW - Relais
Maison MDW - Relais
Second floor plan
Maison MDW - Relais
Maison MDW - Relais
Maison MDW - Relais
Maison MDW - Relais
Maison MDW - Relais
Maison MDW - Relais
Type

Renovation

Typology

Housing

Programme

Renovation and rehabilitation of 53 social housing units

Client

Beliris (Gestionnaire: BinHôme)

Location

Rue du Relais – 1050 Ixelles

Conception

2016

Completion

2025

Status

Built

Surface

5 176 m²

Consultants

Delvaux, MATRIciel, Seco, D2S

Photos

Severin Malaud

Maison MDW - Relais
Maison MDW - Relais
Maison MDW - Relais
Third floor plan