Maison MDW - W58
Maison MDW - W58
Maison MDW - W58
Type

Construction

Typology

Housing

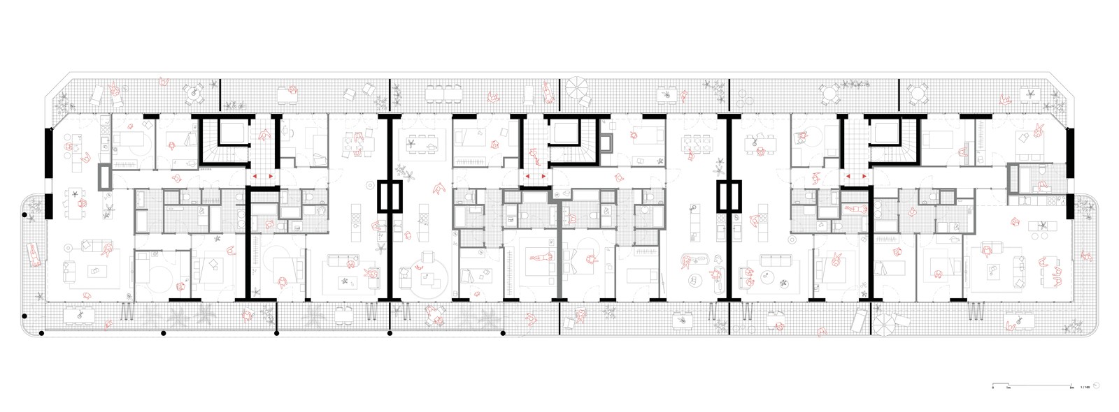
Programme

42 housing units & offices

Client
Location

Boulevard de la Woluwe 58 – 1200 Woluwe‑St‑Lambert

Conception

2021

Status

Stopped

Surface

7 690 m²

Maison MDW - W58
Maison MDW - W58
Maison MDW - W58
Maison MDW - W58
Maison MDW - W58
Maison MDW - W58
Maison MDW - W58
Maison MDW - W58
Maison MDW - W58