




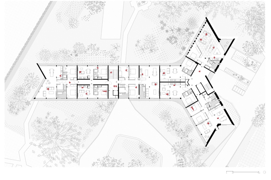
The Val des Fleurs retirement home, built in 1966, is one of the works of architects René Aerts and Paul Ramon. This modernist building was erected within a classical courtyard block of single-family homes. A 'Y' shape was chosen to position the building respectfully in relation to these houses. The elevations of both the large glazed facades and the gables reflect an architectural quality that can be seen, for example, in the plan form of the gables, the silhouette of the roof overhangs, and the "bow-tie" windows at the end of the corridors. The residence also features a thoughtful selection of materials, from the beautiful rhythm of the ironwork on the railings accentuated by chromatic play, to the undulating molding of the window frames, the glazed bricks on the gables, and the elegant sandstone tiles celebrating the entrance.
In addition, Aerts and Ramon created the former chapel on the second floor, defined by the exceptional diamond-shaped ribbed concrete ceiling slab and the façade with its trapezoidal concrete columns. We have retained the layout defined by the rooms and adapted it to the new program, aligning the apartment layouts with the existing rhythm. This is a subtle play of détails: in the plans, in the elevations, and particularly in the adaptation of the building to contemporary standards. The primary challenge lies in adding or replacing elements (raising railings, replacing joinery, etc.) without altering the original spirit of the building.

Renovation
Housing
Renovation of an housing building into 41 housing units
Avenue du Roi Albert – 1082 Berchem‑Sainte‑Agathe
2021
2026
Tender
4 366 m² HS + 1 072 m² S














