



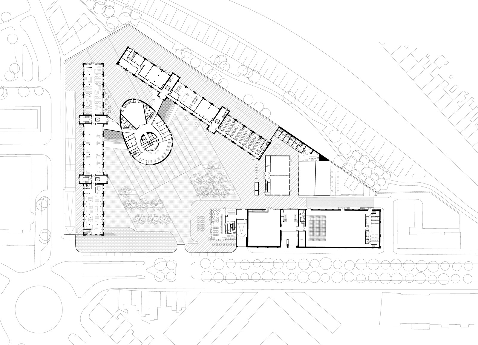
Charleroi's new police headquarters is located in the existing 19th-century Casernes Defeld complex. At the center of the complex rises a 75-meter passive tower in the form of an elliptical cylinder. Clad in blue glazed brick, it forms a strong new landmark for Charleroi, in dialogue with the belfry of the town hall. The tower, along with the two renovated low-energy wings, forms the Police Headquarters, housing 17,000 m² of office space, a detention sector, a logistics area, the Charleroi Centre police station, and a large underground parking garage.
The three buildings are connected on the ground floor by a hall where all necessary security checks for the operation of the facility are carried out. Outside, the open space at the center of the site is designed as a large square that opens up to the city. The square is paved with red bricks and blue brick bands, which connect the tower to its surroundings.






Renovation + Construction
Offices
New police headquarters
Groupe CFE / Ville de Charleroi
Caserne Defeld, Boulevard Mayence 67 – 6000 Charleroi
2011
2014
Built
51 410 m²
Ateliers Jean Nouvel + MDW Architecture
VK Engineering, DTS & Co, MATRIciel, Venac
2016 - Brick Award nominee, 2015 - CTBUH Best Tall Building Europe Finalist, 2012 - MIPIM Award, Future Projects




